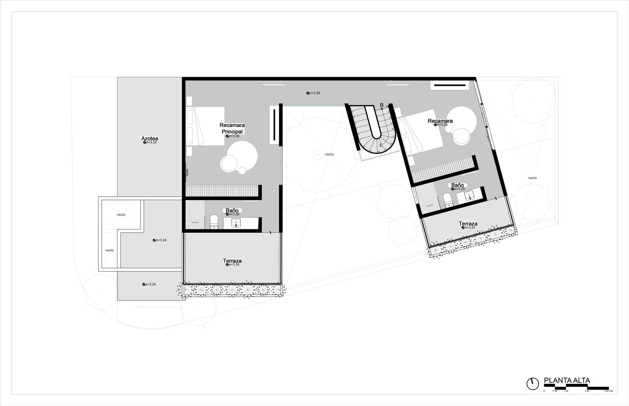
Housis Proyectos / Habitacional
CASA MAYORCA
Área
270 M2
Año
2025
Ubicación
León, Gto.
Colaboradores
Arq. Gerardo Coronilla y Arq. Aldo Martínez